|
預制泵站應用優勢: 生活污水已經慢慢的影響我們的生產生活,對于一些條件差的環境,污水的處理非常困難,因長期的滯留對于整體環境的影響還是很大的,富亞纖維纏繞預製泵站的出現,針對污水的處理進行了有利的發揮,這套裝置主要使用在離主管道低的環境,或是遠離主管道的一些地區,利用它的提升裝置,自動的將水位送到特定污水處理廠處理,不但方便了操作過程化,極大的利于環境的改變。 預製泵站主要使用在市政工業地下室排水、地鐵排水、生活區、工廠等低於地面的一種污水處理裝置,因為這些場所的污水長期存留在一個地方,很容易引起環境的污染,嚴重的還影響人類的正常生活。利用好這套裝置,可以大大改善這種污水困擾的問題,緩解各種環境壓力,提高整體的生活水準。 預製泵站的特點也非常多,它的結構很小,所以佔用的面積不大,還可以進行隱蔽安裝,不影響周圍環境的美觀,安全也比較容易保障,該裝置的抗腐蝕能力也很強,在應用過程中可以有效的提高使用壽命,基本上不用進行日常的維護,故障率很低。 | |
|
|
控制系統普通功能 1、水泵交替運行(高水位報警時,多臺泵同時啟動,低水位報警時,水泵自動恢復交替運行)。 2、水泵具有延時啟動和停止功能,高低水位根據實際流量和規定的啟動次數(≤15次/小時)而設定。 3、攪拌器或反沖洗閥的控制。 4、啟動導向模擬面板,可選、可調和屏蔽狀態。 |
|
|
控制系統多功能型 1、通過容積計算進水流量和出水流量。 2、SCADA軟件通訊平臺和組態技術。 3、管網綜合監控工程服務技術。 4、監控終端RTU。 5、每日清空功能、預制堵塞功能并沖洗/反轉。 6、連續檢測、出水流量數據采集、溢流記錄等。 7、多組水泵控制,并防抱死功能和排除浮沫。 8、技能智能遠程監控檢測系統。泵站確保了最低的能源消耗,對水泵功率進行連續檢測,并保證了水泵和管路得到及時維護。
| |
|
|
控制模式 1、現場手動控制方式。 2、遠程手動控制方式。 3、遠程自動控制方式。 4、專用控制器有多個輸入/輸出接口來連接額外的輸入型號或輸出型號,通過顯示屏簡單直觀反映實時運行情況。 5、集中管理的數據庫和網絡服務器進行數據收集,完全實現了互聯網來監測和管理的目標。 |
|
|
富亞預制泵站的選型: 在正確選型前,我們必須知道以下信息: |
|
|
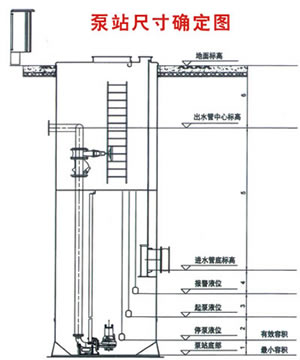
尺寸:a.設計流量、揚程;b.所需配備的水泵數量,包括工作泵和備用泵;c.地面標高、進水管/出水管標高;d.進水管/出水管管徑 |
|
|
應用:應用領域--市政工程、工業、建筑或其他;室內/室外、地面上或地面下等 |
|
|
結構形式:模塊化濕井泵站、模塊化集成式泵站、以及完全客戶定制的泵站 |
|
|
內部管路的材質:304不銹鋼(標準)、316、PVC |
|
|
液位傳感器:壓力液位傳感器(標準)、浮子開關、超聲液位傳感器等等 |
|
|
可選項:藍式格柵、粉碎機、簡易除臭裝置 |
|
|
控制系統:現場自動液位控制、遠程控制 | |
|
 | |
|
 |
|
|
可選項及附件: 富亞一體化預製泵站有配套的附件和客戶化方案可供選擇,以下列出了一些可選項,欲知更多詳情,請聯系富亞公司 附件:通風扇、加熱器、干式安裝泵站排水泵、變頻器、流量計、提升裝置等。 |
|
 |
|
|
設計依據: 1、纖維纏繞玻璃鋼筒體依照GB/21238-2007標準進行設計; 2、泵站的安裝依據ASTMD3839-89玻璃纖維制品地下埋設標準進行; 3、基礎結構由公司按規范設計并預制; 4、泵站內的配置包括泵的數量由需方自選并提出相關要求。 |
|
| 泵站參數: |
|
|
名稱 |
泵站直徑 |
標準高度 |
入流流量 |
水泵功率 |
|
參數 |
1200-3800mm |
最大12m |
最大500L/s |
最大160kw |
|
注:泵站尺寸可根據實際工程需要量身設計制造。 | |